Quick Search
Type
Category
City
Zone
Search
Code
Price (from - to)
-
Sqm (from - to)
-
Order

pa bdl 360 - Stone Building with 7 Apartments near Bagni di Lucca

Town House, Palazzo / Palazzin, Villa, 3+ bedroom apartment

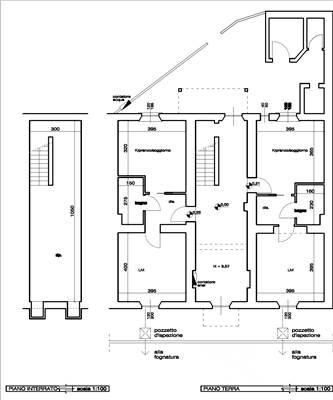
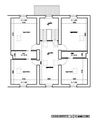
Historic stone building dating back to the late 19th century, located in a small hamlet about 7 km from the centre of Bagni di Lucca and overlooking the picturesque Lima stream. The building has a total surface area of approximately 350 sqm and is arranged over three residential floors, plus a large attic currently used as an apartment and a basement level used as cellars. The three main floors are divided into six apartments, two on each level: the ground floor hosts two one-bedroom apartments, while the first and second floors each include one one-bedroom apartment and one two-bedroom apartment. Each apartment consists of a living area with kitchen and stone fireplace, one or two double bedrooms and a bathroom with shower. The attic, very characteristic for its generous spaces and natural light, is currently used as a large apartment with a spacious kitchen, three double bedrooms and two bathrooms with shower. The current total capacity of the property is approximately 18 beds. Several original features from the period have been preserved, including terracotta floors, stone fireplaces and the original internal staircase built with local stone, which holds notable historical value. At the rear of the building there is a small garden of about 15 sqm and a wooden veranda of about 20 sqm; from the garden a pedestrian path leads directly to the banks of the Lima stream. The sale also includes a separate plot of land of approximately 700 sqm located about 150 metres from the property. The building was fully renovated in 2017, preserving its original architectural character; the electrical and plumbing systems were renewed and comply with current standards. It is fitted with PVC triple-glazed windows ensuring excellent thermal and acoustic insulation. The property is currently used as a tourist accommodation business with established activity and is sold in its current condition, with the possibility of including the existing furnishings. Thanks to the division into several residential units and its location in an area highly appreciated by tourism, the property is suitable both as an investment for hospitality activities and as a private residence with the possibility of renting out some of the apartments. The area is well known for outdoor activities, including hiking trails on the surrounding hills, excursions in the Canyon Park natural reserve and river sports on the Lima stream such as rafting and canoeing. Main distances: Bagni di Lucca 7 km, Lucca 30 km, Pisa 45 km, Florence 100 km, Versilia coast 50 km, Abetone ski resort 30 km.
For privacy reasons, the indicated location is approximate. Please contact us for further details.
VIDEO
Price
360,000 EUR / trat.
Sqm
350
Energetic Class
D (172.83 [kWh/m²a])
Locals
19
Rooms
11
Bathrooms
8
Sqm garden
735
Property Conditions
Perfect Conditions
Rank
Medium
Position
Hill
View
Open View
Orientation
West East
Total Floors
Four
Free Sides
2
Garden
Private
Furniture
Furnished
Type living
Living room
Kitchen
Eat-In Kitchen
Heating
Independent
Heating Type
Fireplace
Type of heating system
Other
Energy source
Pellet
Hot Water
Independent
Cooling
No
Fixtures
PVC triple glazed
Doors
Excellent
Floors Living Room
Tile
Floors Bedrooms
Tile
Floors Kitchen
Tile
Floors Bathroom
Porcelain
Access for disabled
No barrier
Apartments
Seven
Accessories
Fireplace, Optical Fiber, Laundry, Network Data, Closet, Outdoor Tables, Triple glazing, Veranda
Cookie preference